Madrid, 1981
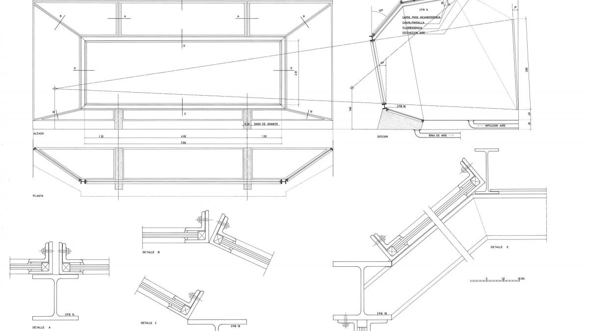
Plans for of the glass booth designed to protect Guernica
Author:
Year:
Medium:
Archived in:
Documentación cedida por Ángela García de Paredes
Loading...
Plans for of the glass booth designed to protect Guernica